Wohnimmobilien in Adnet, Obertrum, Hallein, Elsbethen, Salzburg und Umgebung sowie Velden am Wörthersee
Adnet
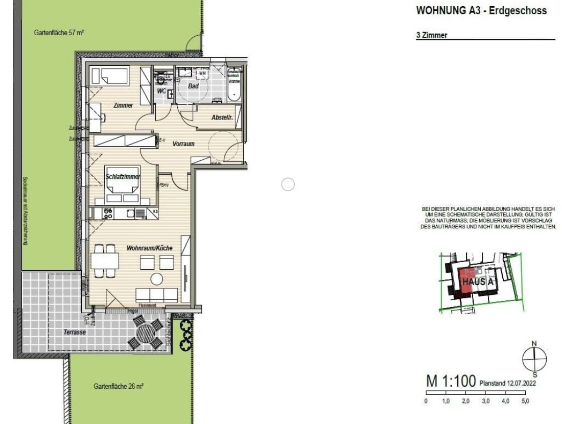
Wohnung A3 im Erdgeschoss
- 72m² Wohnfläche
- 3 Zimmer
- 88 m² Garten
- 21 m² Terrasse
| Zimmer | Größe |
|---|---|
| Wohnraum/Küche | 27,6 m² |
| Schlafzimmer | 11,91 m² |
| Zimmer | 10,61 m² |
| Vorraum | 10,57 m² |
| Bad | 5,97 m² |
| WC | 1,44 m² |
| Abstellraum | 2,64 m² |
| Nutzfläche | 71,53 m² |
| Terrasse | 21,37 m² |
| Tiefgaragenplatz | 1 |
| Kellerabteil | 5,35 m² |
| Gartenfläche | 28 + 60 = 88 m² |
- Holzpelletsheizung und Photovoltaikanlage
- extragroßer Garten
- Tischlerküche
- hochwertige 3-Scheiben-Isolierverglasung
- Eichenparkettböden mit Fußbodenheizung
- Badausstattung mit großformatigen Fliesen
- Tiefgarage und Carports
- E-Ladestationen in Tiefgarage möglich
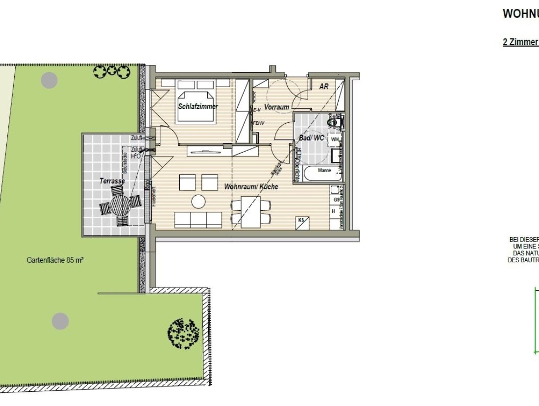
Wohnung A7 im Untergeschoss
- 54m² Wohnfläche
- 2 Zimmer
- 104 m² Garten
- 12,9 m² Terrasse
| Zimmer | Größe |
|---|---|
| Wohnraum/Küche | 28,34 m² |
| Schlafzimmer | 10,82 m² |
| Vorraum | 5,64 m² |
| Bad/WC | 6,48 m² |
| Abstellraum | 2,28 m² |
| Nutzfläche | 53,56 m² |
| Terrasse | 12,90 m² |
| Tiefgaragenplatz | 1 |
| Kellerabteil | 5,35 m² |
| Gartenfläche | 49 m² |
| Böschung | 7 m² |
| Zusätzliche Grünfläche | 50 m² |
| Gesamt | 104 m² |
- Holzpelletsheizung und Photovoltaikanlage
- extragroßer Garten
- Tischlerküche
- hochwertige 3-Scheiben-Isolierverglasung
- Eichenparkettböden mit Fußbodenheizung
- Badausstattung mit großformatigen Fliesen
- Tiefgarage und Carports
- E-Ladestationen in Tiefgarage möglich
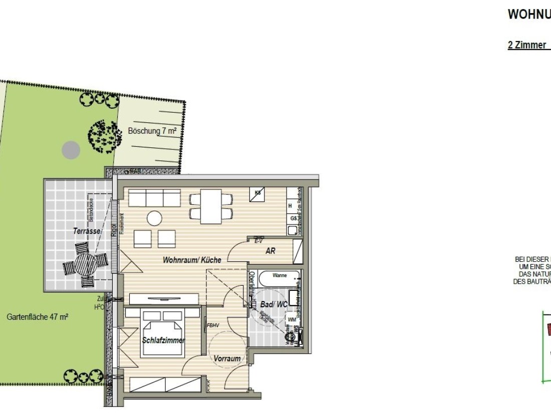
Wohnung A8 im Untergeschoss
- 53m² Wohnfläche
- 2 Zimmer
- 143 m² Garten
- 12,9 m² Terrasse
| Zimmer | Größe |
|---|---|
| Wohnraum/Küche | 26,88 m² |
| Schlafzimmer | 11,83 m² |
| Vorraum | 6,01 m² |
| Bad/WC | 6,26 m² |
| Abstellraum | 2,00 m² |
| Nutzfläche | 52,97 m² |
| Terrasse | 12,90 m² |
| Tiefgaragenplatz | 1 |
| Kellerabteil | 5,35 m² |
| Gartenfläche | 87,8 m² |
| Zusätzliche Grünfläche | 55 m² |
| Gesamt | 143 m² |
- Holzpelletsheizung und Photovoltaikanlage
- extragroßer Garten
- Tischlerküche
- hochwertige 3-Scheiben-Isolierverglasung
- Eichenparkettböden mit Fußbodenheizung
- Badausstattung mit großformatigen Fliesen
- Tiefgarage und Carports
- E-Ladestationen in Tiefgarage möglich
Elsbethen
Haus mit 200m² und 2 Wohnungen
- Nutzfläche gesamt: ca. 200m²
- Erstbezug nach Komplettrenovierung
- Neue Küche (April 2016) mit Top Ausstattung
- Badezimmer mit Badewanne und Dusche im Erdgeschoß
- Badezimmer mit Dusche im Obergeschoß
- Schöner Garten mit 20m² Terrasse
- Balkon/Dachterrasse
- 3 Freistellplätze im Carport
Das Haus befindet sich in einer für Gewerbe oder Arztpraxis idealen Lage in Elsbethen. Attraktive Lage mit Aussicht im Grünen. Gute Infrastruktur mit Volksschule und Kindergarten in unmittelbarer Nähe, Gute Anbindung über die Halleiner Landesstraße.
Schaffen Sie sich aus den beiden Wohnungen ein individuell-charmantes Zuhause! Die Aufteilung der Räume bietet variable Möglichkeiten der Nutzung - Ideale Voraussetzungen vor allem auch für eine Gewerbe / Büro / Wohnnutzung / Einliegerwohnung.
Die Vielzahl der Räume im Objekt lassen vielschichtige Nutzungsmöglichkeiten zu. Künstler haben in diesem Haus eine ideale Atmosphäre. Herzstück ist Erdgeschoß ist der geräumige Wohnbereich mit Kamin und angrenzender Küche als Verbindung zum Essbereich. Die großen Glasanteile bringen sehr viel Licht und Wärme in die Räume. Ein großzügiges Bad ezimmermit Whirl-Wanne, Dusche und WC lädt zum Wohlfühlen ein. Vom Wohnbereich aus gelangt man über einen Wintergarten auf die Terrasse. Über zwei Freitreppen erreicht man das Obergeschoß mit mehreren Zimmern, die Dachgeschoßcharakter bieten. Eine Galerie sowie auch die gegenüber liegende Terrasse bieten einen herrlichen Ausblick ins Grüne. Ein kleines Badezimmer mit Dusche und separaten WC komplettiert das obere Stockwerk. Vor dem Haus befinden sich ein Carport und 3 Abstellplätze. Das Haus wurde 2015/2016 komplett renoviert und befindet sich in ausgezeichnetem Zustand!
Obertrum
Stadtnahe 2,5-Zimmer-Wohnung
- 65m² Wohnfläche
- 2,5 Zimmer
- 3. Stock (Dachgeschoß) mit 360° Blick
- Tiefgaragenplatz optional
- Baujahr 1989
- 3. Stock (Dachgeschoss) - Wohnzimmer mit 360° Blick
- Balkon
- Einbauküche
- 1 Badezimmer
- 1 WC separat
- Böden: Fliesenboden, Parkettboden
- Ausstattung: teilweise möbliert
- Weitere Räume: Abstellraum
- TG-Stellplatz steht optional zur Verfügung
Kurz: ein wahres Schmuckstück für Kleinfamilien und Singles!
Velden
In Velden finden sich neben zahlreichen Einkaufsmöglichkeiten auch gehobene Restaurants, Cafés und Bars, die zum Verweilen einladen. Medizinische Versorgung, Apotheken und Schulen sind ebenfalls gut erreichbar. Zudem profitieren Bewohner von einer idealen Verkehrsanbindung: Die Autobahn A2 verbindet Velden mit den Städten Klagenfurt und Villach, während der Bahnhof regelmäßige Zugverbindungen bietet. Auch der nahegelegene Flughafen Klagenfurt sorgt für eine schnelle Anbindung an nationale und internationale Ziele.
Wer in Velden lebt, genießt also das ganze Jahr über eine hohe Lebensqualität, verbunden mit einer einzigartigen Kombination aus See, Bergen und einer lebendigen Gemeinschaft.
Sonnige Wohnung in Velden
- 62 m² Wohnung im Erdgeschoß
- Balkon, Terrasse
- 150 m² Garten
- 3 Zimmer
| Zimmer | Größe |
|---|---|
| Nutzfläche | 62,39 m² |
| Foyer | 7,15 m² |
| Küche mit Esszimmer | 26,67 m² |
| Schlafzimmer 1 | 10,56 m² |
| Schlafzimmer 2 | 11,78 m² |
| Badezimmer mit Dusche und WC | 6,23 m² |
| Terrasse | 10,76 m² |
| Balkon | 2,76 m² |
| Garten | 150 m² |
Die moderne Designerküche ist mit hochwertigen Elektrogeräten ausgestattet und bietet dank viel Stauraum ausreichend Platz für Ihre Kochutensilien und Küchenaccessoires. Die beiden gemütlichen Schlafzimmer laden zu erholsamen Nächten ein und bieten ausreichend Raum zum Energietanken.
Das stilvolle Badezimmer überzeugt mit einer begehbaren Dusche, einem eleganten Waschbecken, WC und Handtuchtrockner. Ein praktischer Waschmaschinenanschluss sowie zusätzlicher Stauraum für diverse Utensilien runden das Angebot ab.
Diese Wohnung vereint modernen Komfort mit der Ruhe und Schönheit der Natur und ist damit der perfekte Rückzugsort für alle, die das Besondere suchen. Lassen Sie sich von diesem einzigartigen Wohngefühl verzaubern!
Gemütliche Wohnung am Wörthersee
- 66 m² Wohnung im Untergeschoß
- Terrasse
- 170 m² Garten
- 3 Zimmer
| Zimmer | Größe |
|---|---|
| Nutzfläche | 65,85 m² |
| Foyer | 4,81 m² |
| Küche mit Esszimmer und Wohnzimmer | 30,39 m² |
| Schlafzimmer 1 | 10,25 m² |
| Schlafzimmer 2 | 12,01 m² |
| Badezimmer mit Dusche/WC | 5,62 m² |
| Technikraum mit Waschmaschinenanschluß | 2,77 m² |
| Garten | 170 m² |
Die moderne Designerküche ist mit hochwertigen Elektrogeräten ausgestattet und bietet dank viel Stauraum ausreichend Platz für Ihre Kochutensilien und Küchenaccessoires. Die beiden gemütlichen Schlafzimmer laden zu erholsamen Nächten ein und bieten ausreichend Raum zum Energietanken.
Das stilvolle Badezimmer überzeugt mit einer begehbaren Dusche, einem eleganten Waschbecken, WC und Handtuchtrockner. Ein praktischer Waschmaschinenanschluss sowie zusätzlicher Stauraum für diverse Utensilien runden das Angebot ab.
Diese Wohnung vereint modernen Komfort mit der Ruhe und Schönheit der Natur und ist damit der perfekte Rückzugsort für alle, die das Besondere suchen. Lassen Sie sich von diesem einzigartigen Wohngefühl verzaubern!
| Mietkosten | |
|---|---|
| Miete inkl. 10% MWSt. | EUR 1.320,00 |
| Betriebskosten inkl. 10% / 20% MWSt. | EUR 200,00 |
| PKW Tiefgaragenstellplatz inkl. 20% MWSt. | EUR 60,00 |
| Gesamtmiete monatlich | EUR 1.580,00 |
| Kaution einmalig | EUR 5.000,00 |

































































































